HomeNewsArt

Art

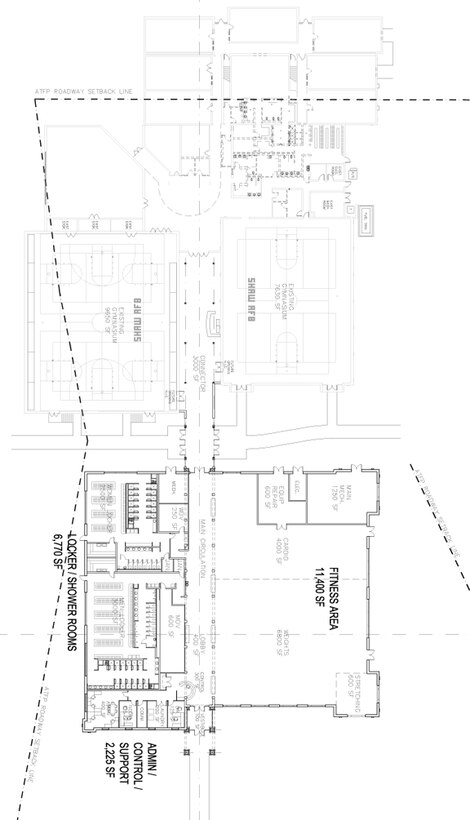
Shaw AFB Fitness Center Add-On
SHAW AIR FORCE BASE, S.C. -- Plans for the fitness center add-on include a 4,000 square foot cardio room as well as a 6,800 square foot free weight and stregth resistance room. About 1,500 people work out at the fitness center on a daily basis. "We are doing everything in our power to make sure everything in this new facility is state of the art," said Charlie Glover, 20th Force Support Squadron fitness and sports director.

Download Image: Full Size (0.19 MB)
Photo by:  |  VIRIN: 081119-F-JZ033-023.JPG